3 đánh giá cho Bồn Cầu TOTO 1 khối MS855DT8#XW Nắp Đóng Êm TC600VS
Chưa có bình luận nào
Liên hệ showroom gần nhất
sản phẩm đã bán trong tháng
Sản phẩm đang có 10 người xem
Giá bán tại hệ thống:
7.761.600 ₫
(Giá Đã Gồm VAT)Giá chưa giảm:
9.010.000 ₫
-14%
còn 100 hàng
Giao hàng nhanh chóng
Đảm bảo 100% chính hãng
Lắp đặt chuẩn xác
Giá tốt - hàng tốt
Bồn Cầu TOTO MS855DT8 được thiết kế với hình dạng bát kéo dài độc đáo, thân vành kín mang lại kiểu dáng đẹp mắt, sang trọng, hạn chế bám bẩn. Giúp dễ dàng vệ sinh, đảm bảo tính thẩm mỹ cho không gian nhà tắm. Bên cạnh đó, sản phẩm còn được tích hợp các công nghệ, tính năng thông minh trong quá trình sản xuất trên dây chuyền khép kín tại Nhật, đem đến những trải nghiệm vô cùng tuyệt vời cho người sử dụng. Cùng Kim Quốc Tiến tìm hiểu ngay để lựa chọn cho gia đình nhé!
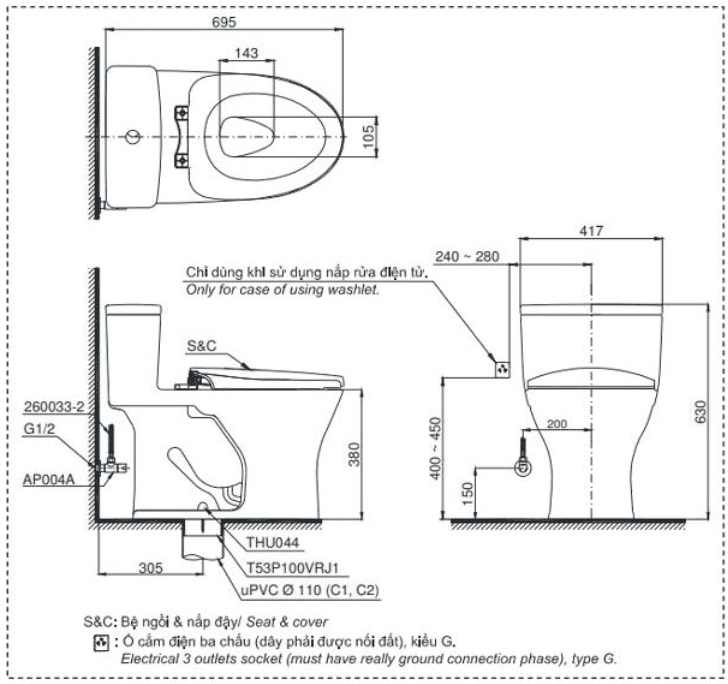
Mời bạn tham khảo thêm bản vẽ kỹ thuật của sản phẩm sau đây nhé!

Để có thể dễ dàng hơn trong việc lựa chọn các sản phẩm thiết bị vệ sinh TOTO cho gia đình mình, quý khách có thể tham khảo thêm một vài kinh nghiệm chọn lựa mà Kim Quốc Tiến sẽ chia sẻ đến bạn ngay sau đây:
Hi vọng với những thông tin mà chúng tôi mang lại, sẽ giúp các bạn có dễ dàng hơn trong việc chọn mua hàng phù hợp. Nếu còn lăn tăn hay thắc mắc về bất cứ điều gì, hãy liên hệ ngay vào đường dây nóng 0898.888.516 để được giải đáp nhanh chóng. Hoặc đến tại địa chỉ cửa hàng gần nhất trải nghiệm thực tế ngay!
Chưa có bình luận nào
SẢN PHẨM ĐÃ XEM

còn 100 hàng
NHẬN TƯ VẤN TỪ KIM QUỐC TIẾN
Quý khách hàng vui lòng điền thông tin theo form dưới đây để được hỗ trợ tư vấn.
Bộ phận CSKH bên Kim Quốc Tiến sẽ hỗ trợ tư vấn trong thời gian sớm nhất.
Thông Tin Đặt Hàng
Nguyễn Nga
Đóng gói an toàn, sản phẩm ko móp méo. Đang lắp ráp để dùng 1 thời gian xem có ổn không rồi quay lại đánh giá
Kim Quốc Tiến Quản trị viên
Cảm ơn bạn đã tin tưởng và lựa chọn mua hàng tại Kim Quốc Tiến
Vinh Nguyễn
Mình ở Sài Gòn nên được nhân viên giao tận nhà còn miễn phí vận chuyển. Thương hiệu uy tín sẽ ủng hộ lâu dài
Kim Quốc Tiến Quản trị viên
Cảm ơn bạn đã tin tưởng và lựa chọn mua hàng tại Kim Quốc Tiến
phạm mạnh duy
Chất lượng sản phẩm OK, hài lòng, sẽ ủng hộ lần sau nếu có cơ hội. Cảm ơn shop
Kim Quốc Tiến Quản trị viên
Cảm ơn bạn đã tin tưởng và lựa chọn mua hàng tại Kim Quốc Tiến